工程名稱:漢高科技原料試劑防爆冷庫工程
客戶全稱及介紹:漢高化學技術(上海)有限公司,漢高化學技術(上海)有限公司隸屬于漢高集團。漢高是一家擁有130多年歷史的跨國集團,全球有125個國家和地區
的消費者信賴漢高的品牌和技術。漢高是財富500強企業。
防爆冷庫工程溫度設計:0~5℃、21~25℃陰涼庫
儲藏品類:化學原料
儲藏方式:制冷、防爆、除濕
設計壽命:30年
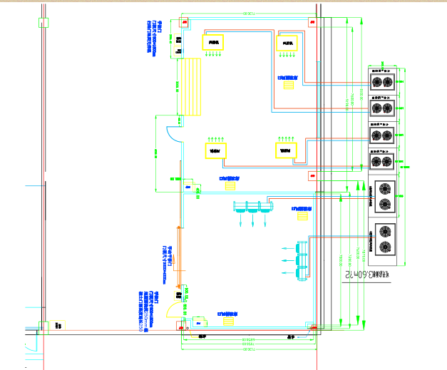
項目介紹:上海漢高龍工廠擬建兩座防爆冷庫,要求冷庫內所有設備以及附件達到EXdⅡBT4防爆級別,0~5度冷庫內使用二臺比澤爾20匹壓縮機組帶動二臺冷風機、一用一備。陰涼庫配備4臺大金5匹空調風管機組,三用一備。為了實時監測冷庫內的溫度,供方在冷庫溫度控制系統之外,還配置了獨立的溫度監測設備,下面會詳細介紹。本冷庫所在的甲類倉庫周圍15米范圍內都屬于防爆危險區,所以本防爆冷庫應為全防爆冷庫,其設計、選型、安裝、施工、驗收都需符合國家防爆規范要求。乙方應確保冷庫驗收滿足常規冷庫驗收外,還需通過國家防爆冷庫檢測驗收。
該防爆冷庫工程主要分為7.2*7.05*6.5H(m)的0~5℃保鮮溫度、9.2*7.1*6.5H(m)的21~25℃的恒溫陰涼庫。該項目庫房保溫部分設計為五面體,保溫材料全選用100mm聚氨酯FM認證B1級0.6寶鋼雙面彩鋼阻燃保溫板,單開雙面彩鋼手拉門,保溫滑升門。3mm的地面防水SBS,100mm厚度擠塑板。ExdⅡBT4雙面彩鋼單開電動平移門,單開雙面彩鋼手拉門 ,防爆加強型風幕機ExdⅡBT4 ,改裝防爆靜壓5匹風管機ExdⅡBT4,冷庫壓力平衡窗 ,比澤爾改裝半封閉防爆風冷機組 ExdⅡBT4,康達托
改裝工業型高效防爆冷風機ExdⅡBT4 ,新風口(帶止回閥),空調送風口,丹弗斯熱力膨脹閥,冷庫專用防爆燈具電控箱。業主需將380v電源送至冷庫電箱,機組基礎由用戶負責、冷庫質保一年,防爆冷庫造價可來電咨詢。
防爆冷庫設計圖紙展示:
風暴冷庫施工完工現場圖片:




